10 10

10 bed Town House - For Sale
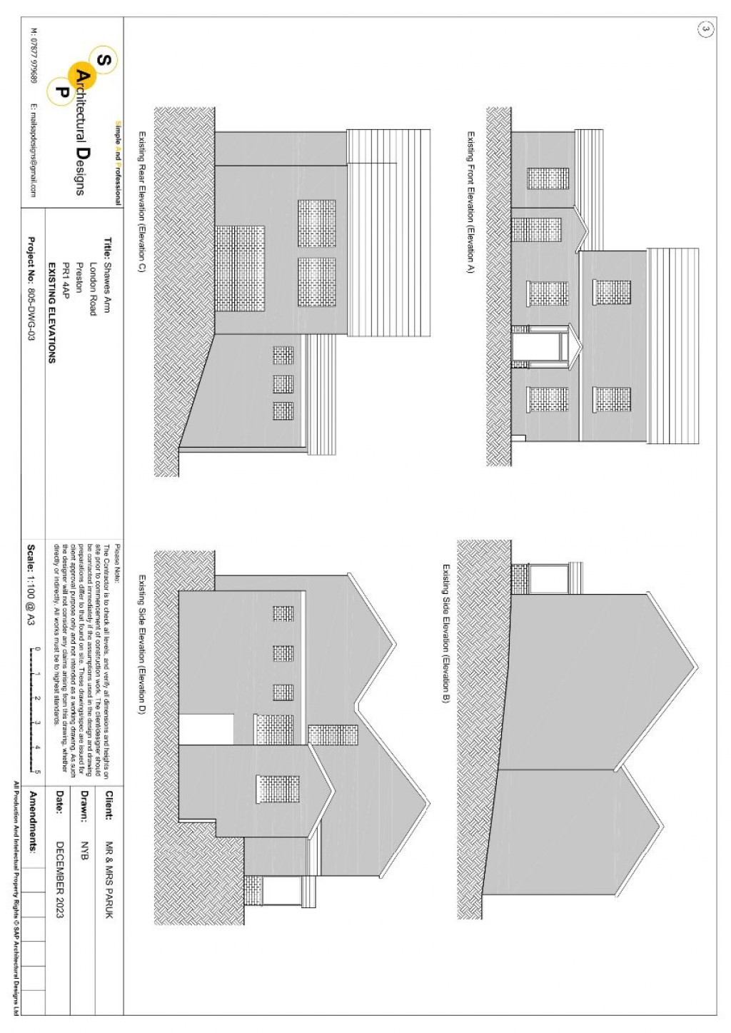
Shaws Arms, London Road, Preston
Fixed Price £325,000

*Attention Investors*Incomplete renovated pub conversion**Potential Opportunity to build a number of Apartments*Fantastic Location*Nearby Transport Hubs*Shopping Malls*Bars*Restaurants** River Views*Site Area Approx 0.494 acres*£325,000 plus VAT**

Book A Viewing To Avoid Disappointment* DESCRIPTION

This partially completed Pub conversion near City Centre of Preston and is an excellent opportunity for Developers to invest in a City, which has a year on year demand for more residential accommodation to meet the needs of our University Students and working professionals. The site is located near Town centre, Shopping areas, Bars and Restaurants. The building is also a few minutes drive from the University and the City Centre.

Current Site
The property has a lot of potential to convert the current pub to a beautiful restaurant overlooking the River Ribble.
The property has spacious land which has the potential to build a number of apartments subject to planning permission. Fantastic location as it will overlook the River Ribble. There is also ideas of building a Fisherman's Lodge subject to planning.

Site Area approximately 0.494 Acres

£325,000 plus VAT

Please contact Northwest Homes For a Viewing



Share:

Floorplans For Shaws Arms,  London Road, Preston Floorplans For Shaws Arms,  London Road, Preston Floorplans For Shaws Arms,  London Road, Preston
Arrange a viewing for Shaws Arms,  London Road, Preston

For further details on this property please call us on:
01772 821313

Download PDF Arrange Viewing View Shortlist